TERRENO AGRICOLO AD ALBENGA ZONA MARE
€ 270.000ALBENGA | Zona mare
1 locali | 6136 mq | Classe G


ALBENGA | Piazza S. Domenico, 23
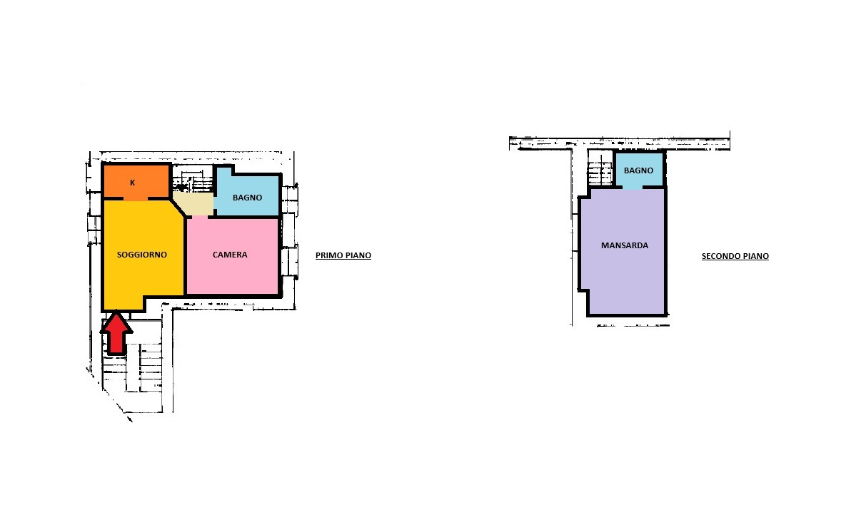
Quartiere San Siro- Nel cuore del centro storico di Albenga, nel tratto più autentico e desiderato tra carruggi, piazze e botteghe, proponiamo un appartamento che interpreta lo stile di vita ligure: scendere di casa e ritrovarsi nella bellezza quotidiana della città antica, con ogni servizio a pochi passi. L’abitazione, posta al primo piano, accoglie con un tinello con angolo cottura ben organizzato, pensato per un utilizzo pratico ma sempre raffinato. La zona notte ospita una camera matrimoniale e un bagno finestrato, un plus raro nel contesto storico, prezioso per luce naturale e corretta aerazione. Una scala interna conduce al livello superiore, dove una mansarda dal carattere caldo e riservato amplia la vivibilità e apre a molteplici interpretazioni: studio, area relax, stanza ospiti o spazio creativo. A completamento, un secondo bagno al piano, dettaglio che innalza il comfort e rende la casa ideale anche per chi desidera una soluzione pronta, versatile e di categoria superiore. Ampio sottotetto a uso ripostiglio o magazzino ideale per una migliore vivibilità degli spazi. Riscaldamento autonomo a gas e condizionatore freddo/caldo. Una proposta di forte personalità per chi cerca un appartamento in vendita ad Albenga centro storico su due livelli, con spazi intelligenti e una posizione che valorizza ogni giornata. Perfetto come prima casa, pied-à-terre o investimento per casa vacanze in Riviera di Ponente.
Tipologia: Appartamento
Piano: 1 di 1
Locali: 3
Superficie: 57 mq
N. Bagni: 2
Classe Energetica: G
Riscaldamento: Autonomo Metano
Spese Condominiali: 100€/anno

Gabriele Lomartire

ALBENGA
ALBENGA | Zona mare
1 locali | 6136 mq | Classe G
ALBENGA | Zona Centrale
1 locali | 36 mq | Classe IN CORSO DI VALUTAZIONE
ALBENGA | Albenga
2 locali | 55 mq | 1 bagni | Classe A
Siamo qui per aiutarti a trovare la casa perfetta per te.