CAMERA-E-CUCINA IN ZONA GIARDINI
€ 129.000BORGHETTO SANTO SPIRITO | Borghetto Santo Spirito
2 locali | 33 mq | 1 bagni | Classe IN CORSO DI VALUTAZIONE


BORGHETTO SANTO SPIRITO | Via Montevideo
€ 32.000
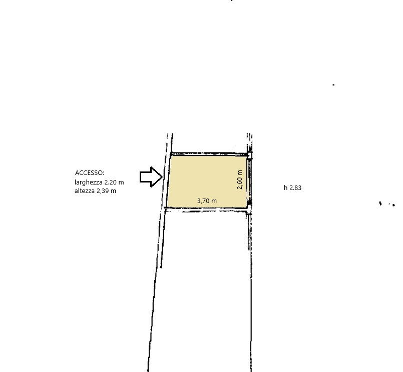
BOX AUTO IN VIA MONTEVIDEO: CONFINE CON LOANO Borghetto S. Spirito - Box di 10 mq in vendita al confine con Loano, in via Montevideo, a 50 metri dal mare, dotato delle seguenti misure: - Ingresso: larghezza 2,20 m, altezza 2,39 m - Larghezza interna 2,60 m - Altezza interna 2,83 m - Profondità: 3,70 m Cerchi un box vicinissimo al mare al confine tra Borghetto e Loano? Chiamaci per visionare questa soluzione!
Tipologia: Box
Piano: T
Locali: 1
Superficie: 10 mq
Classe Energetica: G

Sofia Di Salvo

BORGHETTO SANTO SPIRITO
BORGHETTO SANTO SPIRITO | Borghetto Santo Spirito
2 locali | 33 mq | 1 bagni | Classe IN CORSO DI VALUTAZIONE
BORGHETTO SANTO SPIRITO | Pineland
1 locali | 29 mq | 1 bagni | Classe G
BORGHETTO SANTO SPIRITO | Borghetto Santo Spirito
2 locali | 44 mq | 1 bagni | Classe IN CORSO DI VALUTAZIONE
Siamo qui per aiutarti a trovare la casa perfetta per te.