

CASA INDIPENDENTE CON VISTA PANORAMICA!
CASANOVA LERRONE | Frazione Degna, 76
Descrizione
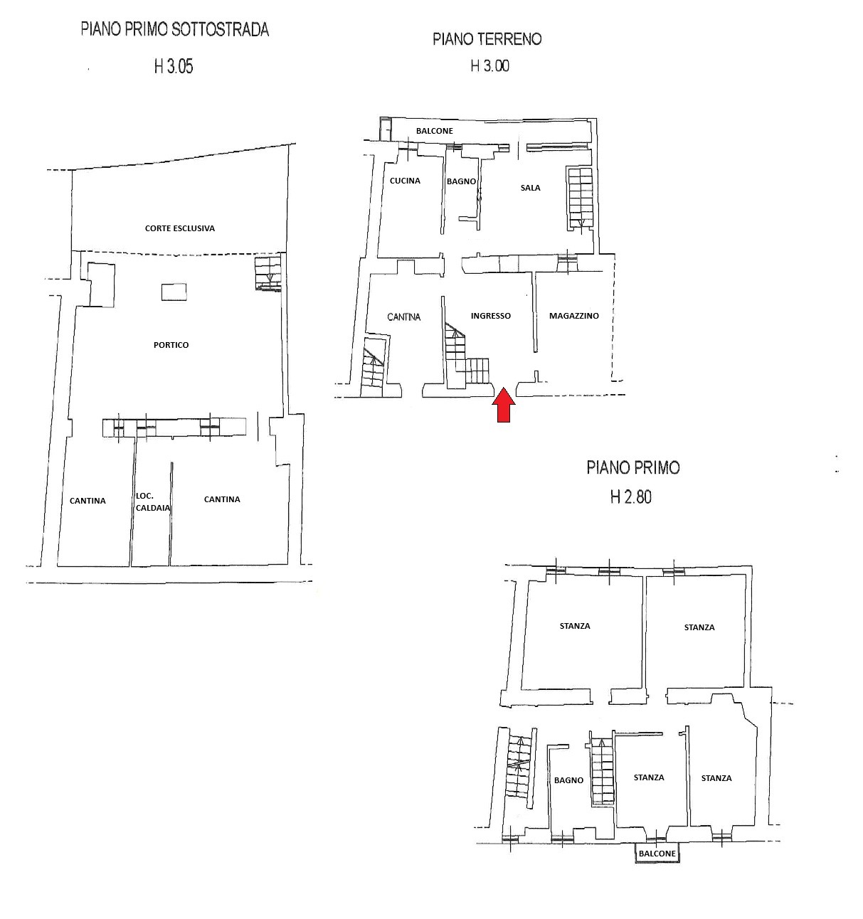
Nel cuore autentico di Degna, suggestiva frazione di Casanova Lerrone, proponiamo in vendita una casa indipendente di rara personalità, ideale per chi desidera ampi spazi, privacy e una vista panoramica aperta sulla natura dell’entroterra ligure. L’esposizione sud-est assicura luce naturale per tutta la giornata, mentre l’assenza di spese condominiali rappresenta un valore sempre più apprezzato da chi cerca una dimora libera e autonoma. La proprietà si sviluppa su tre livelli, con una distribuzione articolata e funzionale. Al piano seminterrato un grande porticato introduce a due cantine e al locale caldaia: ambienti versatili, perfetti come taverna, area hobby, deposito o spazio da reinterpretare secondo le proprie esigenze. Al piano terreno si trovano l’ingresso principale, il box auto e una cantina collegati internamente, un salottino di ingresso, sala da pranzo con balcone affacciato sulla splendida vallata, una cucina abitabile e un bagno restaurato finestrato, in perfette condizioni. Una scala esterna, e interna, conduce al livello superiore, rendendo possibile anche un secondo ingresso indipendente. Qui ci accoglie un disimpegno con un'ampia e luminosa sala, secondo bagno finestrato e tre camere da letto di generosa metratura, di cui due matrimoniali, una con balcone, e una singola. È una soluzione perfetta come prima casa a Casanova Lerrone, come residenza per vacanze nell’entroterra di Albenga o come dimora di carattere per chi ama i borghi liguri autentici. La vista aperta, la generosità degli ambienti e le possibilità di personalizzazione rendono questa casa indipendente in vendita a Degna un’opportunità di valore, capace di coniugare autenticità, comfort e fascino. Una proprietà da visitare per coglierne appieno atmosfera, potenziale e bellezza.
Caratteristiche principali
Tipologia: Casa Indip.
Piano: T di 2
Locali: 6
Superficie: 272 mq
N. Bagni: 2
Classe Energetica: G
Caratteristiche aggiuntive
Riscaldamento: Autonomo Gas

Gabriele Lomartire
Planimetria

Non hai trovato quello che cercavi?
Siamo qui per aiutarti a trovare la casa perfetta per te.


