TRILOCALE A 200 METRI DAL MARE CON CANTINA!
€ 259.000LOANO | Musicisti
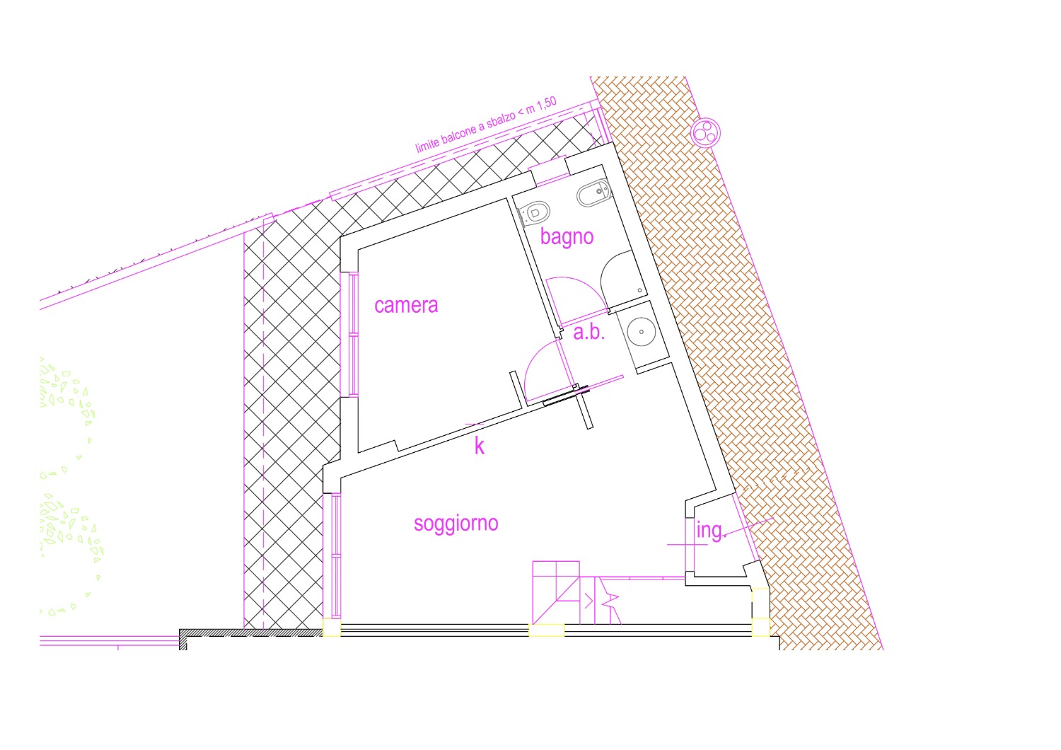
3 locali | 67 mq | 1 bagni | Classe F


LOANO | Via Sant'Agostino
Questa residenza nasce per soddisfare il bisogno di coloro che ricercano indipendenza combinata ad una abitazione moderna, a forte impatto Green. Ma non solo…questa soluzione risponde anche alle necessità di chi ricerca centralità e vicinanza al mare. Ci troviamo infatti a pochi passi dal Comune di Loano e dal rinomato centro storico, a tre minuti dal lungomare. Il villino è attualmente in corso di realizzazione e sarà semi-indipendente, dotato del proprio ingresso privato. Si estenderà per 70 mq suddivisi su due livelli: l’ingresso sarà direttamente nella zona giorno con angolo cottura a vista, caratterizzata da un’ampia vetrata con vista sul giardino esclusivo. Dal soggiorno si raggiungeranno una camera da letto e i primi servizi dotati di finestra. Una scala condurrà al piano superiore, composto da camera e secondi servizi, anch’essi finestrati, oltre che al terrazzo vivibile di oltre 30 mq. Gli interni saranno realizzati con rifiniture di altissima qualità, cura al dettaglio, insieme a una grande attenzione per soluzioni tecnologiche all’avanguardia, in classe A senza spese di gestione o mantenimento. Completerà la soluzione un pratico posto auto privato. Consegna prevista entro la primavera 2025, ma è già possibile prenotare una visita per un approfondimento completo. Richiesta euro 490.000 Cerchi una proprietà di nuova costruzione? Chiama AgeCasa per maggiori informazioni su questo cantiere. AgeCASA.. . L'Immobiliare per Natura.. .
Tipologia: Villino
Piano: T di 2
Locali: 3
Superficie: 70 mq
Classe Energetica: A+++
Riscaldamento: Autonomo Pompa di calore

Giusy Roccaforte


LOANO
LOANO | Musicisti
3 locali | 67 mq | 1 bagni | Classe F
LOANO | Centro storico
3 locali | 61 mq | 1 bagni | Classe D
LOANO | Loano
2 locali | 50 mq | 1 bagni | Classe D
Siamo qui per aiutarti a trovare la casa perfetta per te.