BILOCALE IN AFFITTO – MILANO, ZONA INGANNI
€ 980MILANO | Lotto, Novara, San Siro
2 locali | 54 mq | Classe G


MILANO | Milano Via Derna 26
€ 1450
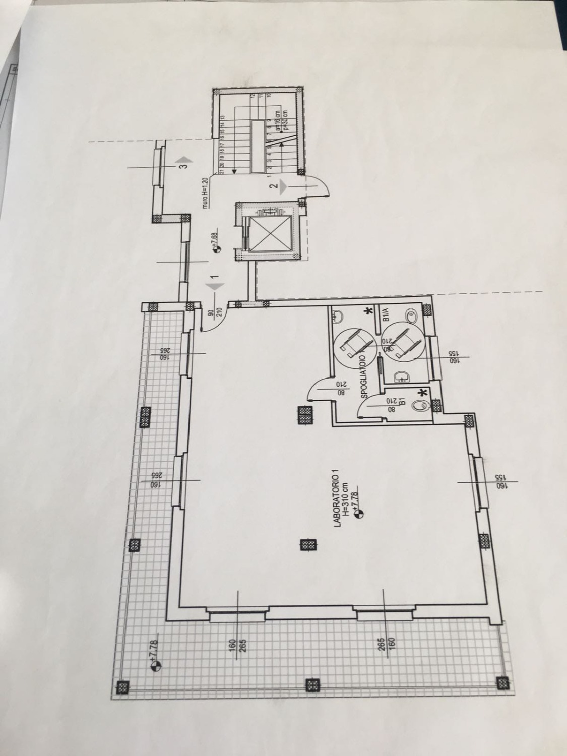
UFFICIO IN AFFITTO – MILANO, CIMIANO – 105 MQ + TERRAZZO A soli 400 metri dalla fermata della metropolitana M2 Cimiano, proponiamo in affitto un prestigioso ufficio/laboratorio di 105 mq, situato al secondo piano di uno stabile signorile di recente costruzione, dotato di ascensore e privo di barriere architettoniche. Una soluzione moderna, funzionale e immediatamente disponibile, ideale per attività che richiedono spazi versatili e una posizione urbanisticamente strategica. L’immobile si presenta con un ampio open space perfetto per postazioni operative o area condivisa, una cucina separata, e doppi servizi completi di antibagno/spogliatoio, pensati per garantire massimo comfort al personale. Elemento di grande valore aggiunto è il terrazzo coperto di 37 mq, un’area esterna rara per questa categoria, ideale come spazio di rappresentanza, area break o per momenti di lavoro all’aperto. L’ufficio è dotato di tutte le moderne tecnologie: impianto di aria condizionata, videocitofono, cablaggio dati e predisposizioni funzionali alla gestione di attività professionali o creative. La locazione è soggetta a IVA. È richiesto il pagamento trimestrale anticipato; restano escluse le utenze, la tassa rifiuti del Comune di Milano e la mediazione dell’Agenzia. Un ambiente elegante e ben collegato, perfetto per aziende, studi professionali, start-up o realtà che desiderano un ufficio di rappresentanza in una zona in forte crescita di Milano.
Tipologia: Ufficio
Piano: 2 di 3
Locali: 1
Superficie: 105 mq
N. Bagni: 1
Classe Energetica: D
Ascensore: Sì
Riscaldamento: Autonomo Gas
Spese Condominiali: 2400€/anno

Alessio Tipoli
CONTATTAMI SUAGENZIA
Milano Porta Romana
Corso di Porta Romana, 124
TELEFONO
+39 02 39308715

MILANO | Lotto, Novara, San Siro
2 locali | 54 mq | Classe G
MILANO | Centro Storico
1 locali | 25 mq | Classe G
MILANO | Centro Storico
1 locali | 25 mq | Classe G
Siamo qui per aiutarti a trovare la casa perfetta per te.