APPARTAMENTO DI 80 MQ DA RISTRUTTURARE CON POSTO AUTO
€ 115.000TOIRANO | Toirano
3 locali | 80 mq | Classe G


TOIRANO | Via Urivei, 20
€ 249.000
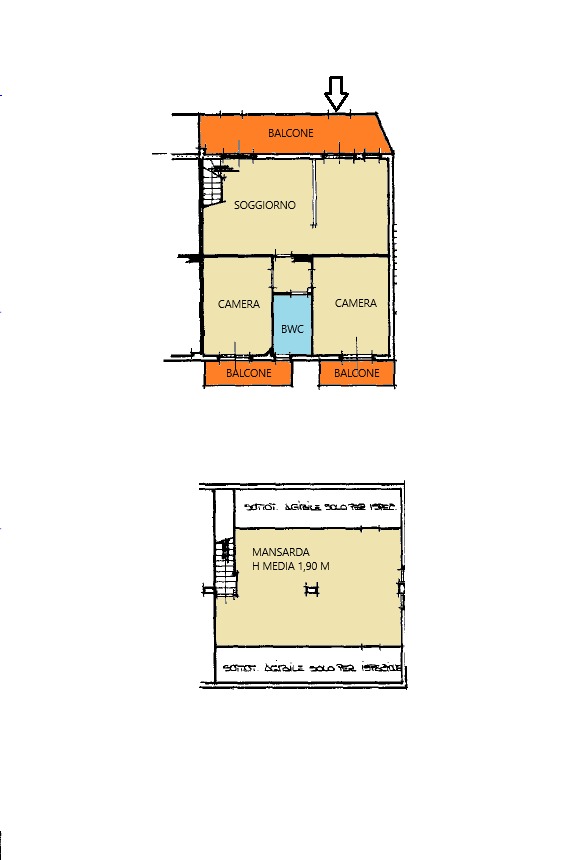
TRILOCALE CON INGRESSO INDIPENDENTE E AMPIA MANSARDA Toirano - In arrivo un bellissimo trilocale di 106 mq che unisce spazi ampi e una piacevole sensazione di casa. Ci troviamo in zona Urivei, all'interno di una piccola palazzina di soli due piani, con ampia area di parcheggio. I punti di forza che contraddistinguono questa soluzione sono sicuramente l’ingresso indipendente, l'ampia metratura e la doppia esposizione che riempie gli ambienti di luce. L'ingresso è direttamente nella zona giorno con angolo cottura a vista, da cui si raggiungono i servizi e le due camere da letto, entrambe matrimoniali. Una scala a vista presente nel soggiorno conduce al piano soprastante, dove è situata un’ampia mansarda abitabile di oltre 40 mq: lo spazio in più che tutti desiderano, pronto ad essere trasformato in un locale "jolly" come un angolo per lavorare in totale privacy, un zona relax aggiuntiva o un camera ulteriore per rilassarsi o ospitare chi si ama. Una casa pensata per chi cerca indipendenza, comfort e un luogo dove sentirsi davvero bene ogni giorno. [Immobile dotato di Relazione di Regolarità Edilizia] PERCHE' SCEGLIERLO? 1. Ampia zona giorno 2. Piccolo contesto condominiale 3. Ingresso indipendente 4. Riscaldamento autonomo 5. Ampia area parcheggio 6. Doppia esposizione 7. Mansarda abitabile di oltre 40 mq come spazio extra Stai cercando una prima casa a Toirano? Contattaci per informazioni o per riservare la tua visita!
Tipologia: Appartamento
Piano: 1 di 1
Locali: 3
Superficie: 106 mq
N. Bagni: 1
Classe Energetica: G
Riscaldamento: Autonomo GPL
Spese Condominiali: 990€/anno

Sofia Di Salvo
CONTATTAMI SU
TOIRANO | Toirano
3 locali | 80 mq | Classe G
TOIRANO | Toirano
3 locali | 50 mq | Classe G
TOIRANO | Toirano
2 locali | 44 mq | Classe G
Siamo qui per aiutarti a trovare la casa perfetta per te.